Sion, appartement de 3.5 pièces au centre-ville dans un immeuble de standing VENDU

rue Ste-Marguerite 7, 1950 Sion

CHF 530'000.-
1
2
3
4
5
6
7
8
9
10
11
12
13
    13 photos     OpenStreetMap     Fichier ou plan   
  • Prix de vente : CHF 530'000.-
  • Surface habitable : ~ 95 m²
  • Disponible : Vendu

Description

Cet appartement de 3,5 pièces se situe au 3ième étage de l’immeuble « Les Avelines », construit en 2011 à la rue Ste-Marguerite 7 à Sion.

La situation cet immeuble de standing est idéale au centre-ville, à proximité de toutes les commodités (commerces, espaces publics, transports publics, …), tout en bénéficiant d’une situation très calme à proximité directe de la Sionne.

Bien agencé et très fonctionnel avec ses rangements intégrés, l’appartement offre un espace de vie ouvert, spacieux et doté de grandes fenêtres. Les deux chambres orientées est offre une magnifique vue sur le château de Valère et la Sionne. La cuisine dans les tons de rouge est entièrement équipée et donne un caractère contemporain à ce bien.

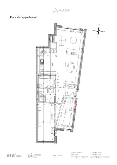
L’appartement dispose d’une surface habitable brute de 99.5 m2. La distribution des pièces s’organise de la manière suivante, en considérant les surfaces habitables nettes (=balayables) :

  • un hall d’entrée de 4.9 m2 avec rangement intégré
  • un salon/séjour de 33.1 m2 avec rangement intégré ouvert sur la cuisine de 9.1 m2
  • une chambre parentale de 16.9 m2 avec sa salle de douche privative de 4.9 m2
  • une chambre enfant de 9.9 m2
  • une salle de bain de 5.4 m2 avec colonne de lavage

Le bien comporte également une cave comprise dans le prix de vente. Une place de parc souterraine peut être acquise en sus.

L’appartement peut être loué CHF 1'700.- charges et place de parc intérieure comprises. Les charges sont basses et s’élèvent à 35 CHF par m2 et par année.

Points forts :

  • Au centre-ville
  • Situation particulièrement calme
  • Fonctionnel et contemporain
  • Grand espace de vie de 42 m2

Tout afficher

Détails


  • Pièce(s) : 3.5
  • Chambre(s): 2
  • Salle(s) d'eau: 1
  • Niveau: 3. Etage
  • Catégorie : Appartement
  • Réf. : 2120

 A proximité


 Environnement


 Extérieur


 Intérieur


Situation géographique

Voir en Street View    Voir sur Google Maps