Vex, ravissant chalet de 4.5 pièces de 84 m2 avec couvert et extérieur plat de 100 m2

route des Agettes 47, 1981 Vex

CHF 540'000.-
2
3
4
5
6
7
9
10
11
13
14
15
16
17
18
19
20
21
22
23
24
25
26
    23 photos     OpenStreetMap     Fichier ou plan   
  • Prix de vente : CHF 540'000.-
  • Surface habitable : ~ 84 m²
  • Surface de la parcelle : ~ 679 m²
  • Volume : ~ 255 m³
  • Disponible : A convenir

Description

Construit en 1973, ce ravissant chalet de 4.5 pièces baptisé « Le Mélèze » se situe à la route des Agettes 47 à Vex. Situé à une altitude de 1020m, il bénéficie d’un emplacement idéal : à la fois niché dans un cadre paisible offrant une superbe vue sur la Dent-Blanche, la Maya, les Alpes bernoises tout en étant proche de toutes les commodités (moins de 10 minutes à pied des commerces, restaurants et services, école).

La situation est également parfaite pour les amateurs de loisirs de plein air : de nombreux sentiers de randonnée, bisses, itinéraires VTT et l’accès au domaine skiable des 4 Vallées (à seulement 10 minutes en voiture ou accessible en bus avec arrêt à 2 minutes).

Le chalet, situé sur deux parcelles d’au total 679 m2, dispose d’un grand jardin plat et arboré d’environ 100 m2, agrémenté d’arbres fruitiers, ainsi que d’une terrasse couverte de 17 m2 idéale pour profiter de l’extérieur toute l’année.

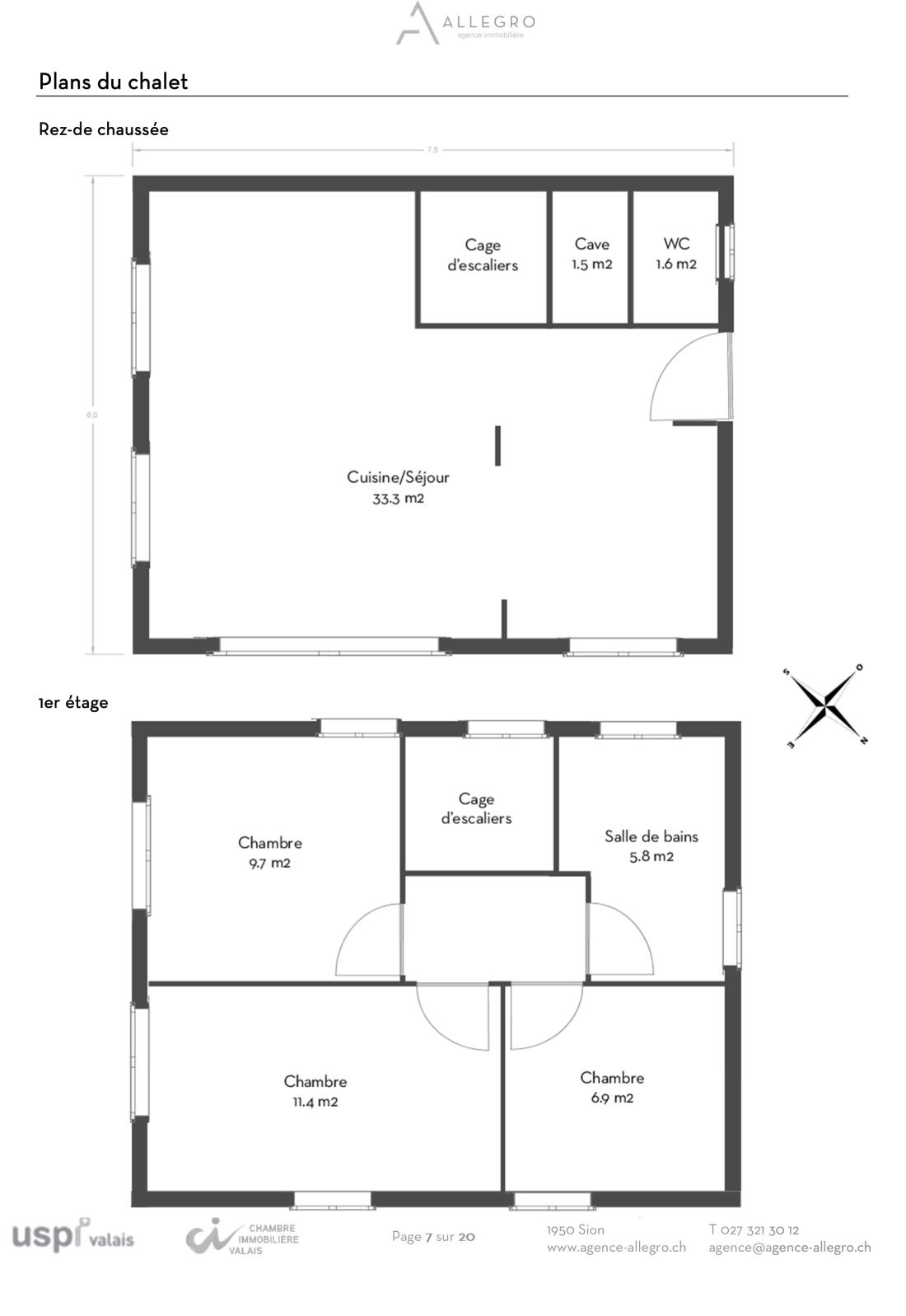
Organisé sur 2 niveaux, le chalet, chaleureux et accueillant, propose de beaux volumes et une distribution fonctionnelle. Au rez-de-chaussée, la pièce à vivre, ouverte sur la cuisine, bénéficie d’une belle luminosité. Un WC visiteurs ainsi qu’un petit réduit complètent cet étage. Au premier, un petit hall distribue trois jolies chambres ainsi qu’une salle de bains avec baignoire.

Le volume du chalet s’élève à 255 m3 bâtis (selon norme SIA 416) sur 84 m2 de surface brute habitable et 78.3 m2 de surface habitable nette. Le chalet s’organise de la manière suivante :

  • Au rez-de-chaussée,
  • Un séjour avec cuisine ouverte de 33.3 m2,
  • Un WC de 1.6 m2,
  • Une cave de 1.5m2,
  • Une terrasse couverte de 17 m2.

A l’étage

  • Un hall de distribution de 2.6 m2,
  • Trois chambres, de respectivement 11.4, 9.7 m2 et 6.9 m2,
  • Une salle de bains de 5.8 m2.

Le bien comporte également une remise attenante à la terrasse couverte et un galetas. Une place de parc extérieure située à 130 m du chalet peut être louée à la commune pour 50 CHF/mois.

Il est possible d’utiliser ce bien comme résidence secondaire.

A noter que le chalet dispose d’une grande réserve à bâtir de plus de 200 m2 et qu’un agrandissement pourrait tout à fait être réalisable.

L’accès au chalet se fait par un escalier et n’est donc pas adapté aux personnes à mobilité réduite.

Points forts :

  • A proximité de toutes les commodités et des stations de ski
  • Petit havre de paix en pleine nature
  • Lumineux et ensoleillé
  • Grand Jardin arboré et magnifique panorama

Tout afficher

Détails


  • Pièce(s) : 4.5
  • Chambre(s): 3
  • Salle(s) d'eau: 2
  • Catégorie : Chalet
  • Réf. : 2160

 A proximité


 Environnement


 Extérieur


 Intérieur


 Ensoleillement et vue


Situation géographique

Voir en Street View    Voir sur Google Maps