Haute-Nendaz, bel appartement de 3.5 pièces de 77m2 avec 2 balcons au cÅ“ur de la station RÉSERVÉ

chemin des Crêtes 37, 1997 Haute-Nendaz

CHF 520'000.-
1
2
3
4
5
6
7
8
9
10
11
12
13
14
15
    15 photos     OpenStreetMap     Fichier ou plan   
  • Prix de vente : CHF 520'000.-
  • Surface habitable : ~ 77 m²
  • Disponible : Réservé

Description

L’appartement de 3.5 pièces se situe au 4ième étage de l’immeuble « Aiglon », construit en 1975 au chemin des Crête 37, dans une des plus belles situations de Haute-Nendaz.

Le secteur des Crêtes se trouve en plein centre de la station (3 minutes à pied de la plaine des Ecluses, de ses commerces et de son accès aux pistes de ski) tout en étant complètement au calme avec une vue extraordinaire sur les Alpes bernoises au nord et les Alpes valaisannes au sud. Le dégagement est complet et ne présente aucun risque de vis-à-vis futurs.

L’appartement a bénéficié d’un entretien régulier, avec notamment le rafraîchissement des sols et des peintures. Il présente également un très beau potentiel de rénovation grâce à sa configuration et à l’absence de murs porteurs. La distribution des espaces est harmonieuse, et l’aménagement actuel permet d’accueillir confortablement jusqu’à six personnes.

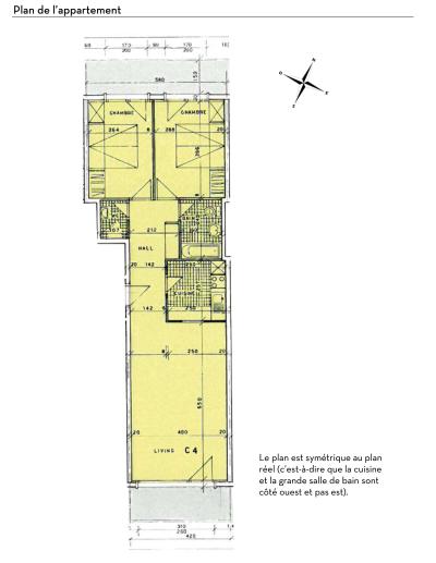
L’appartement présente une surface brute habitable (SBH) de 76.8 m2 et une surface de balcons de 6.1 m2 au sud et 8.5 m2 au nord, soit une surface totale de vente avec 1/2 balcons de 84.1 m2. Le bien s’organise de la manière suivante en surface habitable nette (SHN):

  • un hall d'entrée et de distribution avec armoires intégrées de 8.6 m2,
  • un séjour et salle à manger de 25.6 m2 orientés sud,
  • une cuisine semi-fermée de 5.8 m2, qu’il serait possible d’ouvrir sur le séjour (murs non-porteurs),
  • deux chambres de 11.7 et 10.6 m2 orientées nord et avec armoires intégrées,
  • deux salles d’eau, une avec baignoire de 4.1 m2 et un WC de 1.8 m2.

Une cave ainsi qu’une buanderie et un local à ski commun sont également à disposition dans l’immeuble.

L’appartement peut être occupé en résidence secondaire et l’acquisition est possible pour les étrangers.

Points forts :

  • Situation au cœur de la station de Haute-Nendaz
  • Environnement très calme
  • Grand dégagement sans vis-à-vis
  • Bonne configuration des pièces

La station de Nendaz est très attractive. Vous pouvez profiter d’activités toute l’année, que ce soit le ski en hiver sur les pistes de renommée mondiale de la région des 4 Vallées », le plus grand domaine skiable de suisse avec ses 102 pistes et culminant à 3'330 m (www.4vallees.ch), ou la randonnée en été dans les sentiers pittoresques, les nombreux bisses ou les pistes de descente VTT. Des spas, des centres de bien-être et des événements culturels locaux ajoutent un sacré cachet à cette région dynamique.

Tout afficher

Détails


  • Pièce(s) : 3.5
  • Chambre(s): 2
  • Salle(s) d'eau: 2
  • Niveau: 4. Etage
  • Catégorie : Appartement
  • Réf. : 2166

 Exposition


 A proximité


 Environnement


 Extérieur


 Intérieur


 Equipement


 Ensoleillement et vue


Situation géographique

Voir en Street View    Voir sur Google Maps